
咨詢熱線深13923499923
Technical indicators
1.size: 1/4″~2 1/2″
2. Pressure: 150LB~4500LB
3. Body material
Carbon steel -50℃~425℃
Alloy steel -50℃~610℃
Stainless steel -50℃~700℃
4. End connection: Butt-welded,
Socket-welded, External thread, Card set
5. Applicable medium:water, steam
And corrosive medium
性能特點: Performance characteristics
材質:
316不銹鋼具有最大的耐腐蝕性能,通過防振螺栓固定在主軸上,可以更換帶有防篡改功能的手輪或帶有或不帶有我們已獲專利的鎖定裝置的手輪。
密封
精密加工,與動態活塞環配合使用,在產品使用壽命內提供無泄漏操作。可以使用其他材料的密封件。
活塞環
獨特地根據壓力變化動態調整填料壓蓋密封。此功能可確保無泄漏主軸密封。
可互換的提示
非旋轉自定心,防咬傷的主軸頭可提供可靠的氣密性關閉自定心閉合,并且可以實現不同刀頭樣式的現場互換性。
材料的可追溯性
所有Oliver產品均具有BS EN 10204 3.1的材料可追溯性和壓力測試證書,并通過了ISO 9001:2008批準的QA程序進行控制。所有針形閥體上均刻有唯一代碼,將其與其材料和化學分析證書相鏈接。
閥腔
當針形閥處于最高壓力和最高溫度時,軋制螺紋與閥體接觸的堅固設計可確保較高的安全系數。金屬與金屬,閥體與閥蓋的接觸以及特殊的輔助密封件提供了極為有效的無泄漏接頭。
防塵帽
保護潤滑的主軸螺紋免受灰塵進入。蓋上標有顏色,以顯示針閥適合的使用條件類型。紅色(標準)代表PTFE填充;白色用于除氧,用于氧氣服務,黑色用于填充石墨。
推子和鎖緊螺母
這些精密加工的零件可調節填料上的活塞環壓縮,即使在真空條件下也能實現無泄漏操作。
抗井噴主軸
我們針閥的心臟。所有螺紋均經過滾壓和潤滑,以消除磨損。密封直徑上特殊的十微英寸超精加工大大降低了操作扭矩。閥桿防噴/不可拆卸,這是主要的安全功能。
鎖銷
316不銹鋼銷釘可防止未經授權卸下閥蓋組件。銷釘通過防振花鍵固定到主體中。
身份環
外殼周圍的不銹鋼環以彩色編碼表示針閥的狀態:隔離(藍色),排氣(紅色)或均壓(綠色)。
剖視圖

材質表
部件類別 | F105 | F22 | WB36 | F91 | F92 | F316 | F316H | F347H |
閥體 | F105 | F22 | WB36 | F91 | F92 | F316 | F316H | F347H |
閥座 | 司太立 | 司太立 | 司太立 | 司太立 | 司太立 | 司太立 | 司太立 | 司太立 |
閥瓣 | Co-Cr-W鋼球Co-Cr-W Steel ball | Co-Cr-W鋼球Co-Cr-W Steel ball | Co-Cr-W鋼球Co-Cr-W Steel ball | Co-Cr-W鋼球Co-Cr-W Steel ball | Co-Cr-W鋼球Co-Cr-W Steel ball | Co-Cr-W鋼球Co-Cr-W Steel ball | Co-Cr-W鋼球Co-Cr-W Steel ball | Co-Cr-W鋼球Co-Cr-W Steel ball |
閥桿 | 304 | 316 | 316 | 316 | 316 | 316 | 316 | 316 |
支架 | A105 | F22 | WB36 | F91 | F92 | F316 | F316H | F347H |
填料 | 柔性石墨 | 柔性石墨 | 柔性石墨 | 柔性石墨 | 柔性石墨 | 柔性石墨 | 柔性石墨 | 柔性石墨 |
手輪 | 沖壓 | 沖壓 | 沖壓 | 沖壓 | 沖壓 | 沖壓 | 沖壓 | 沖壓 |
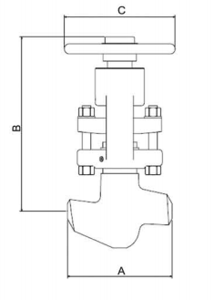
尺寸表

通經 | 結構長度A | 中心高B | 手柄長度C | 重量KG |
DN10/3/8’’ | 120 | 245 | 180 | 5.3 |
DN15/1/2’’ | 120 | 245 | 180 | 6.8 |
DN20/3/4/’’ | 170 | 350 | 180 | 9.7 |
DN25/1’’ | 170 | 350 | 180 | 9.7 |
DN32/1 1/4’’ | 170 | 350 | 180 | 10.4 |
溫壓曲線圖

安裝維護說明
1、閥門盡可能按閥桿垂直水平面安裝,如需其他方法安裝,請參考說明。
2、產品出廠時已經嚴格檢驗,請勿解體,可打光譜,可試。
3、安裝時應使介質流向與閥體所示箭頭方向一致,切勿裝反。
4、第一次使用時,須全開門,對閥門及管道進行清洗。調整壓板螺母,確保填料處于良好密封狀態。
5、運行中,當工況溫度變化較大(如停機維修)時,檢查并旋緊壓板螺母,壓緊填料。以防閥桿處外漏。
Installment and maintenance instruction
1. Along the valve stem vertical horizontal plane to install the valve as far as possible, if you need other installment, please explain
2. Our valves have been examined strictly when leaving the plant, please do not disintegrate. You may hit the spectrum and car
on the pressure test
3. When installing the valve, you should cause the medium to flow consistent with the arrow direction, do not install instead
4. When installing the valve, please open the valve completely, clean the valve and the pipeline. You should tighten the stem nut
This can guarantee the good seal of the padding
5. In the working time, if the situation temperature changes greatly, please check and tighten the clamp nut, compact the padding
thus the outside leakage from the valve stem will be prevented
案例業績:
1、國電山東聊城電廠
2、江西大唐撫州電廠
3、湖南株洲電廠
4、廣東雷州電廠
技術參數
1.口徑:1/4″~2 1/2″
2.壓力:150LB~4500LB
3.閥體材質:
碳素鋼 -50℃~425℃
合金鋼 -50℃~610℃
不銹鋼 -50℃~700℃
4.連接方式:對焊、承插焊、外螺紋、卡套等
5.適用介質:水、蒸汽及各種腐蝕介質
留下聯絡方式 客戶將電子版采購清單和聯系方式發送至郵箱:kentuo@ctrok.com,或來電咨詢 0755-2104-8717
選型與報價收到客戶采購清單,銷售顧問會第一時間為客戶選型與報價。
電話溝通相關事宜 電話溝通商定:交貨期、特殊要求等事宜。